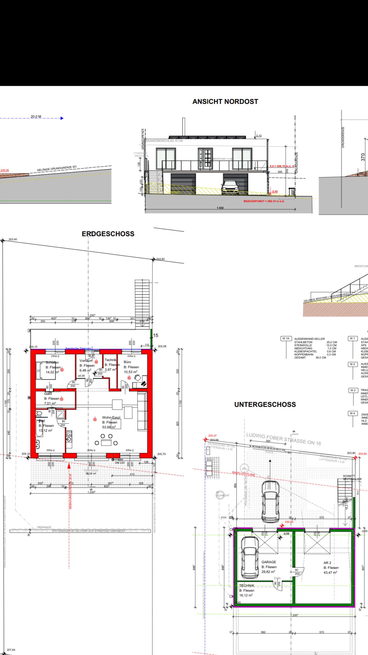
Unterbau "keller" später dämmen später betonieren ?
|
|
||
Mit Plan könnte man dir eventuell weiter helfen |
||
|
||
Wie gesagt geht nur um den grundriss, nicht um den Wohnbereich der wird etwas anders gestaltet bzw gedreht als hier im Plan . Danke LG aus Niederösterreich |
||
|
||
|
Möglich wäre es sicher, quasi den Boden später zu betonieren. Ob es finanziell einen großen Vorteil bietet weiß ich nicht - aufwändiger wirds bestimmt. Wenn du den "Keller" komplett aus der warmen Hülle nimmst musst du aufpassen, dass du alle Wärmebrücken berücksichtigtst! Da kommen einige zusammen! |
||
|
||
|
Welche genau meinst du ? Kannst du mir das kurz erklären? LG |
||
|
||
|
Also wir haben auch Keller im Hang. Dabei ist ein "Raum" quasi offen und auch außerhalb der warmen Hülle. Ich mach aber an allen Wänden und Decke die gleiche Dämmung wie am restlichen Haus. Quasi eine "Innendämmung" in dem offenen Raum. Bei dir im Plan ist es eh auch eingezeichnet, Deckendämmung in der Garage usw. Einfach darauf achten, dass die warme Hülle durchgehend ist - vor allem bei derartigen Details wie der Deckenvorsprung usw. |
Dieser Thread wurde geschlossen, es sind keine weiteren Antworten möglich.Nächstes Thema: Welcher Zisternenfilter?


